WEB_1212_15SHEET_PHOTO_DYP_7286.jpg

15SHEETS

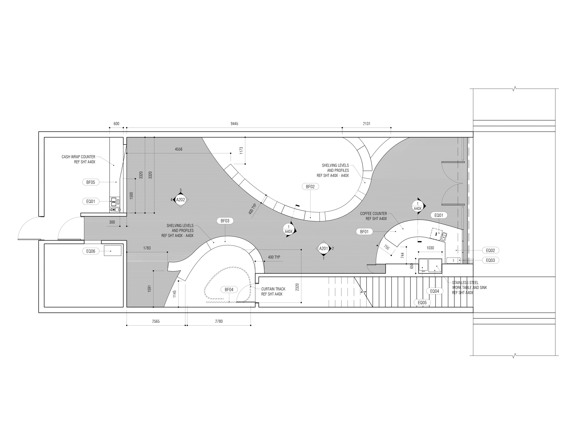
Menswear retail design in Kuala Lumpur

 
 
 

15 SHEETS  Nestled along a street of shopfronts known for their upmarket boutiques, 15 Sheets is unlike the other shoebox interiors. The suspended shelf displays form three inner chambers allowing shoppers to delight in the intimacy and surprise of slipping through multiple worlds.